Beschreibung
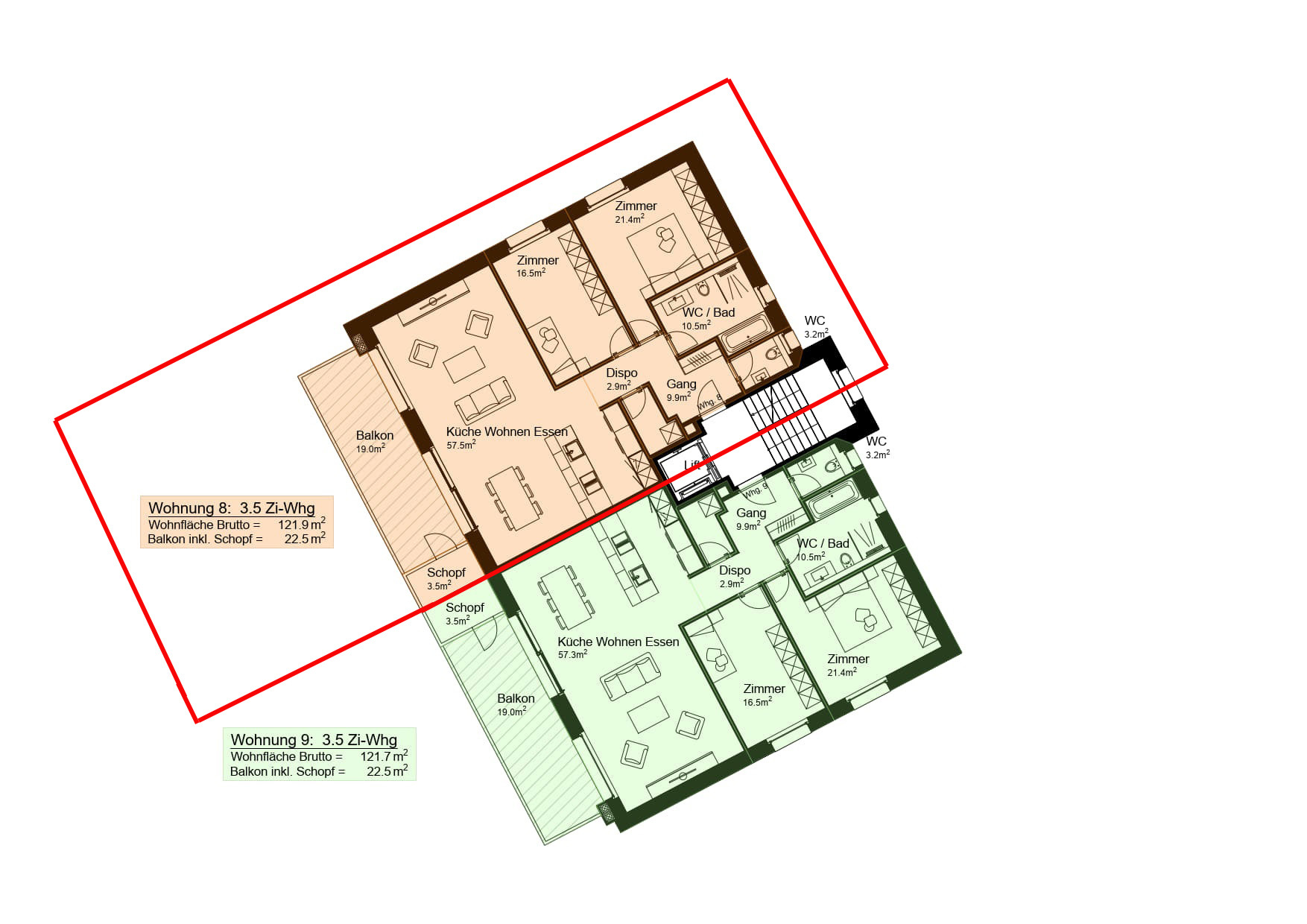
Die 3.5-Zi-Wohnung Nr. 8 befindet sich im ersten Obergeschoss vom Haus B des Neubauprojekts "Ils Muots" in Brail. Die Wohnung verfügt über einen durchdachten Grundriss und über einen grosszügigen, gedeckten Balkon mit praktischem Abstellraum. Die Wohnung kann individuell ausgebaut werden und es bietet sich somit die Möglichkeit, ein Zuhause nach Mass zu verwirklichen.
Im Garagengeschoss ist für jede der insgesamt 10 Wohnungen, verteilt auf zwei Mehrfamilienhäuser, ein Autoabstellplatz mit angrenzendem Kellerabteil vorgesehen. Zudem stehen zusätzliche Kellerabteile im Untergeschoss des Hauses B zur Verfügung.
Das Projekt:
Das Neubauprojekt besteht aus zwei Mehrfamilienhäusern mit einer gemeinsamen Autoeinstellhalle, die neben grosszügigen Autoabstellplätzen auch über 2 Parkfelder speziell für Camper und Vans verfügt.
Die Gebäude bieten eine hohe Wohnqualität für die Bewohner. Es erwarten Sie helle und grosszügige Raumverhältnisse zu einem fairen Preis. Die moderne Architektur fügt sich durch die natürlichen Materialien optimal ins Landschaftsbild ein. Minergie-Standard (ohne Lüftung und ohne Zertifizierung) und barrierefreies Bauen runden die Gestaltung ab. Eine Photovoltaik-Anlage zur nachhaltigen Stromversorgung wird auf dem Dach verbaut.
Ein individuell gestaltetes Zuhause erzeugt eine grosse emotionale Verbundenheit.
Es entstehen 2 Mehrfamilienhäuser mit je 6 Eigentumswohnungen: 3 2.5-Zi-Wohnungen im Ergeschoss, zwei 3.5-Zi-Wohnungen im ersten Obergeschoss sowie jeweils im Dachgeschoss eine 4.5-Zi-Wohnung. Die unterirdische Autoeinstellhalle verfügt über 15 Autoabstellplätze, teilweise mit angrenzender Kellerfläche sowie 5 Aussenabstellplätze.
Der Baubeginn ist im Frühjahr 2026 geplant; die Bezugsbereitschaft erfolgt voraussichtlich im Herbst 2027.
Weitere Informationen zum Projekt finden Sie auch auf unserer Website: ils-muots-brail.ch
Für Fragen zum Neubauprojekt steht Ihnen Frau Regula Cadalbert gerne zur Verfügung.
Wir freuen uns auf Ihre Kontaktnahme.
Hinweis:
Bei den Unterlagen handelt es sich um Projektpläne, Änderungen bleiben vorbehalten. Die Visualisierungen sind Projektideen für eine bessere Veranschaulichung.
Im Garagengeschoss ist für jede der insgesamt 10 Wohnungen, verteilt auf zwei Mehrfamilienhäuser, ein Autoabstellplatz mit angrenzendem Kellerabteil vorgesehen. Zudem stehen zusätzliche Kellerabteile im Untergeschoss des Hauses B zur Verfügung.
Das Projekt:
Das Neubauprojekt besteht aus zwei Mehrfamilienhäusern mit einer gemeinsamen Autoeinstellhalle, die neben grosszügigen Autoabstellplätzen auch über 2 Parkfelder speziell für Camper und Vans verfügt.
Die Gebäude bieten eine hohe Wohnqualität für die Bewohner. Es erwarten Sie helle und grosszügige Raumverhältnisse zu einem fairen Preis. Die moderne Architektur fügt sich durch die natürlichen Materialien optimal ins Landschaftsbild ein. Minergie-Standard (ohne Lüftung und ohne Zertifizierung) und barrierefreies Bauen runden die Gestaltung ab. Eine Photovoltaik-Anlage zur nachhaltigen Stromversorgung wird auf dem Dach verbaut.
Ein individuell gestaltetes Zuhause erzeugt eine grosse emotionale Verbundenheit.
Es entstehen 2 Mehrfamilienhäuser mit je 6 Eigentumswohnungen: 3 2.5-Zi-Wohnungen im Ergeschoss, zwei 3.5-Zi-Wohnungen im ersten Obergeschoss sowie jeweils im Dachgeschoss eine 4.5-Zi-Wohnung. Die unterirdische Autoeinstellhalle verfügt über 15 Autoabstellplätze, teilweise mit angrenzender Kellerfläche sowie 5 Aussenabstellplätze.
Der Baubeginn ist im Frühjahr 2026 geplant; die Bezugsbereitschaft erfolgt voraussichtlich im Herbst 2027.
Weitere Informationen zum Projekt finden Sie auch auf unserer Website: ils-muots-brail.ch
Für Fragen zum Neubauprojekt steht Ihnen Frau Regula Cadalbert gerne zur Verfügung.
Wir freuen uns auf Ihre Kontaktnahme.
Hinweis:
Bei den Unterlagen handelt es sich um Projektpläne, Änderungen bleiben vorbehalten. Die Visualisierungen sind Projektideen für eine bessere Veranschaulichung.
Lage
Das kleine Dorf Brail liegt auf 1636 m.ü.M. und ist mit seinen rund 100 Einwohnern die höchstgelegene und kleinste Fraktion der Gemeinde Zernez.
Unterhalb des Dorfes fliesst der König der Alpenflüsse – der Inn –durch die imposante Brailschlucht, welcher im Sommer gerne mit Kajaks und Kanus befahren wird. Der angrenzende Nationalpark begeistert mit seiner Wildnis und Artenvielfalt jeden Naturliebhaber und Wanderer gleichermassen. Im Winter verbindet die «Loipa dal Sulgal» (Sonnenloipe) die Dörfer S-chanf und Brail.
Auch kulinarisch trumpft Brail gross auf: Das Restaurant Vivanda, im kleinsten 5-Sterne-Superior-Hotel der Schweiz
«IN LAIN», wurde mit einem Michelin-Stern und 17 Gault-Milliau-Punkten ausgezeichnet. Ein kulturelles Highlight ist die 600 Jahre alte Kirche San Tumesch. Weiter bildet Brail die Sprachgrenze der beiden romanischen Idiome Vallader und Putér. Die symbolische Grenze Punt Ota (hohe Brücke) befindet sich etwas ausserhalb in Richtung Cinuos-chel.
In nur 12 Minuten erreicht man mit dem öffentlichen Bus die Ortschaft Zernez. Das Gemeindezentrum bietet viel für die Freizeit und das Familienleben. Nebst der Schule, diversen Einkaufsmöglichkeiten und der medizinischen Versorgung, befindet sich auch ein Hallenbad, ein Sportzentrum und ein Kinderskilift im Dorf.
Unterhalb des Dorfes fliesst der König der Alpenflüsse – der Inn –durch die imposante Brailschlucht, welcher im Sommer gerne mit Kajaks und Kanus befahren wird. Der angrenzende Nationalpark begeistert mit seiner Wildnis und Artenvielfalt jeden Naturliebhaber und Wanderer gleichermassen. Im Winter verbindet die «Loipa dal Sulgal» (Sonnenloipe) die Dörfer S-chanf und Brail.
Auch kulinarisch trumpft Brail gross auf: Das Restaurant Vivanda, im kleinsten 5-Sterne-Superior-Hotel der Schweiz
«IN LAIN», wurde mit einem Michelin-Stern und 17 Gault-Milliau-Punkten ausgezeichnet. Ein kulturelles Highlight ist die 600 Jahre alte Kirche San Tumesch. Weiter bildet Brail die Sprachgrenze der beiden romanischen Idiome Vallader und Putér. Die symbolische Grenze Punt Ota (hohe Brücke) befindet sich etwas ausserhalb in Richtung Cinuos-chel.
In nur 12 Minuten erreicht man mit dem öffentlichen Bus die Ortschaft Zernez. Das Gemeindezentrum bietet viel für die Freizeit und das Familienleben. Nebst der Schule, diversen Einkaufsmöglichkeiten und der medizinischen Versorgung, befindet sich auch ein Hallenbad, ein Sportzentrum und ein Kinderskilift im Dorf.
Bemerkungen
Vertragskosten:
Die notariellen Kosten, Grundbuchgebühren und Handänderungssteuern von ca. 2.3% des Kaufpreises werden hälftig zw. Käufer und Verkäufer geteilt.
Die notariellen Kosten, Grundbuchgebühren und Handänderungssteuern von ca. 2.3% des Kaufpreises werden hälftig zw. Käufer und Verkäufer geteilt.
Eigenschaften
Umgebung
- Dorf
- Restaurant(s)
- Bushaltestelle
- Langlaufloipe
- Wanderwege
- Radweg
Aussenbereich
- Balkon(e)
- Gartensitzplatz
- Parkplatz
Innenbereich
- Behindertengerecht
- Lift
- Einstellhallenplatz
- Offene Küche
- Gäste-WC
- Keller
- Unmöbliert
- Kaminanschluss für Schwedenofen
- Dreifachverglasung
- Hell
Ausstattung
- Moderne Küche
- Anschlüsse für Wasch-Trocken-Säule
- Badewanne
- Dusche
- Elektrische Rollläden
- Gegensprechanlage
Boden
- Nach Wahl
Zustand
- Neu
Besonnung
- Gut
Aussicht
- Schöne Aussicht
- Berge
Stil
- Modern







