Descrizione
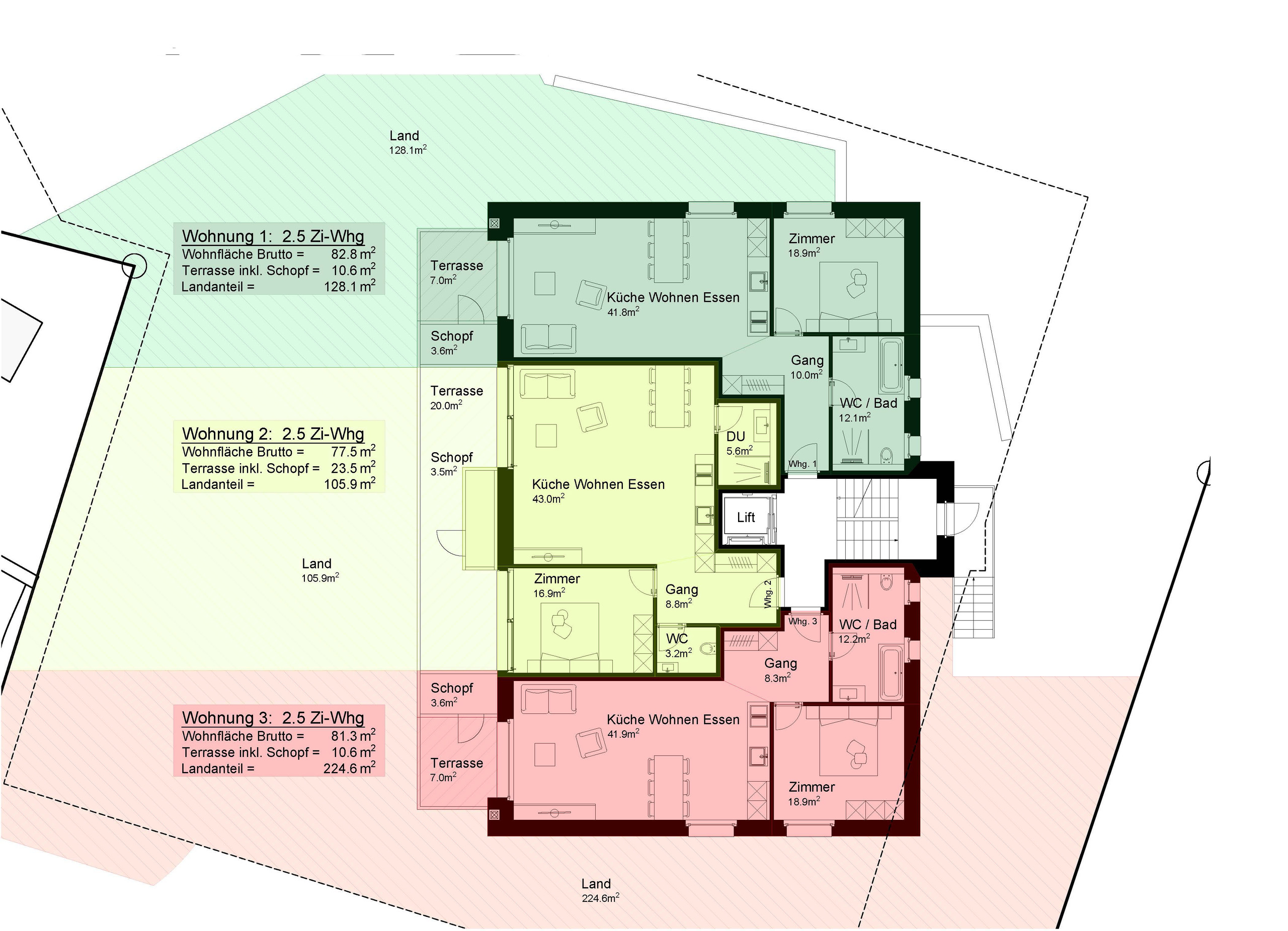
Questo moderno appartamento d’angolo di 2.5 locali si trova al piano terra dell’edificio A ed è particolarmente luminoso e accogliente.
L’ampia zona giorno open space con cucina è il punto focale dell’appartamento e offre molto spazio per uno stile di vita personalizzato. La camera da letto è silenziosa e ben strutturata. L’offerta abitativa è completata da un bagno.
Il patio esterno privato con ripostiglio dedicato estende lo spazio abitativo verso l’aperto e assicura ulteriore spazio contenitivo. Con una superficie di circa 200 m² offre inoltre uno spazio eccezionalmente ampio per gli amanti del giardinaggio, per giocare o per trascorrere momenti di relax immersi nel verde.
IL PROGETTO
Le due case plurifamiliari ILS MUOTS, immerse nella natura, sono sinonimo di vita moderna e di alta qualità. Il progetto combina architettura contemporanea con planimetrie ben studiate, dando vita a spazi abitativi che coniugano armoniosamente comfort, funzionalità e qualità della vita.
Gli appartamenti sono caratterizzati da ambienti luminosi e spaziosi nonché da un design chiaro e moderno. Le finestre a tutta altezza garantiscono molta luce naturale e un ambiente piacevole. Le planimetrie ben progettate consentono di sfruttare lo spazio in modo ottimale e offrono molteplici possibilità di arredamento.
I balconi generosi ampliano lo spazio abitativo verso l’esterno e diventano un rifugio privato immerso nel verde, dove godersi il relax e lasciarsi alle spalle la routine quotidiana.
Il progetto vanta inoltre un interessante rapporto qualità-prezzo e una riuscita combinazione tra ubicazione in una zona tranquilla immersa nella natura e una buona accessibilità.
L’OFFERTA ABITATIVA
La Casa A, situata sopra il garage sotterraneo, vanta un’interessante offerta abitativa ben concepita. Al piano terra saranno costruiti tre spaziosi appartamenti di 2.5 locali con planimetrie confortevoli. Il piano superiore comprenderà due luminosi appartamenti di 3.5 locali, mentre al piano attico sarà realizzato un esclusivo appartamento di 4.5 locali che si estende su tutto il piano e offrirà un’esperienza abitativa davvero speciale.
La Casa B ha la stessa offerta abitativa della Casa A. Tuttavia, la suddivisione degli spazi al piano terra è attualmente volutamente aperta in modo da consentire una risposta flessibile alle esigenze abitative individuali: realizzare ad esempio un’unità abitativa particolarmente spaziosa. Vi è inoltre la possibilità di creare un collegamento interno al piano interrato, lasciando così spazio a interessanti opzioni per ulteriori utilizzi, come ad esempio un’area benessere privata, uno studio o locali individuali per hobby o locali accessori.
IL CRONOPROGRAMMA
I lavori sono iniziati; disponibilità prevista per l’inverno 2027/primavera 2028.
L’ampia zona giorno open space con cucina è il punto focale dell’appartamento e offre molto spazio per uno stile di vita personalizzato. La camera da letto è silenziosa e ben strutturata. L’offerta abitativa è completata da un bagno.
Il patio esterno privato con ripostiglio dedicato estende lo spazio abitativo verso l’aperto e assicura ulteriore spazio contenitivo. Con una superficie di circa 200 m² offre inoltre uno spazio eccezionalmente ampio per gli amanti del giardinaggio, per giocare o per trascorrere momenti di relax immersi nel verde.
IL PROGETTO
Le due case plurifamiliari ILS MUOTS, immerse nella natura, sono sinonimo di vita moderna e di alta qualità. Il progetto combina architettura contemporanea con planimetrie ben studiate, dando vita a spazi abitativi che coniugano armoniosamente comfort, funzionalità e qualità della vita.
Gli appartamenti sono caratterizzati da ambienti luminosi e spaziosi nonché da un design chiaro e moderno. Le finestre a tutta altezza garantiscono molta luce naturale e un ambiente piacevole. Le planimetrie ben progettate consentono di sfruttare lo spazio in modo ottimale e offrono molteplici possibilità di arredamento.
I balconi generosi ampliano lo spazio abitativo verso l’esterno e diventano un rifugio privato immerso nel verde, dove godersi il relax e lasciarsi alle spalle la routine quotidiana.
Il progetto vanta inoltre un interessante rapporto qualità-prezzo e una riuscita combinazione tra ubicazione in una zona tranquilla immersa nella natura e una buona accessibilità.
L’OFFERTA ABITATIVA
La Casa A, situata sopra il garage sotterraneo, vanta un’interessante offerta abitativa ben concepita. Al piano terra saranno costruiti tre spaziosi appartamenti di 2.5 locali con planimetrie confortevoli. Il piano superiore comprenderà due luminosi appartamenti di 3.5 locali, mentre al piano attico sarà realizzato un esclusivo appartamento di 4.5 locali che si estende su tutto il piano e offrirà un’esperienza abitativa davvero speciale.
La Casa B ha la stessa offerta abitativa della Casa A. Tuttavia, la suddivisione degli spazi al piano terra è attualmente volutamente aperta in modo da consentire una risposta flessibile alle esigenze abitative individuali: realizzare ad esempio un’unità abitativa particolarmente spaziosa. Vi è inoltre la possibilità di creare un collegamento interno al piano interrato, lasciando così spazio a interessanti opzioni per ulteriori utilizzi, come ad esempio un’area benessere privata, uno studio o locali individuali per hobby o locali accessori.
IL CRONOPROGRAMMA
I lavori sono iniziati; disponibilità prevista per l’inverno 2027/primavera 2028.
Posizione
Il piccolo borgo di Brail si trova a 1636 m s.l.m. e con i suoi circa 100 abitanti è la frazione più alta e allo stesso tempo più piccola del comune di Zernez.
Sotto il borgo scorre il re dei fiumi alpini: l’Inn. Esso scorre attraverso l’imponente gola di Brail ed è molto frequentato in estate da kayakisti e canoisti. Nelle immediate vicinanze si estende il Parco Nazionale Svizzero, che con la sua natura incontaminata e la sua impressionante biodiversità affascina sia gli amanti della natura sia gli appassionati di escursionismo.
Patrimonio culturale tra ponte e chiesa
La chiesa di San Tumesch, risalente a oltre 600 anni fa, è un gioiello culturale. Brail segna inoltre il confine linguistico tra i due idiomi romanci Vallader e Putér, simboleggiato dal Punt Ota (ponte alto), che si trova poco fuori dal paese in direzione di Cinuos-chel.
Abitare all’insegna del gusto e vivere attivamente
In inverno, la «Loipa dal Sulgal» (pista del sole) collega i borghi di S-chanf e Brail; un percorso consigliatissimo per gli appassionati dello sci di fondo.
Brail è anche una meta gastronomica di prim’ordine: il ristorante Vivanda all’interno dell’esclusivo hotel 5 stelle superior «IN LAIN» a cui sono stati riconosciuti una stella Michelin e 17 punti Gault-Milliau.
La località Zernez è comodamente raggiungibile in soli 12 minuti con l’autobus pubblico. Il centro comunale offre molte opportunità per il tempo libero, la formazione e la vita familiare. Oltre alla scuola, a diversi negozi e all’assistenza medica, nel comune sono presenti anche una piscina coperta, un centro sportivo e uno skilift per bambini.
Sotto il borgo scorre il re dei fiumi alpini: l’Inn. Esso scorre attraverso l’imponente gola di Brail ed è molto frequentato in estate da kayakisti e canoisti. Nelle immediate vicinanze si estende il Parco Nazionale Svizzero, che con la sua natura incontaminata e la sua impressionante biodiversità affascina sia gli amanti della natura sia gli appassionati di escursionismo.
Patrimonio culturale tra ponte e chiesa
La chiesa di San Tumesch, risalente a oltre 600 anni fa, è un gioiello culturale. Brail segna inoltre il confine linguistico tra i due idiomi romanci Vallader e Putér, simboleggiato dal Punt Ota (ponte alto), che si trova poco fuori dal paese in direzione di Cinuos-chel.
Abitare all’insegna del gusto e vivere attivamente
In inverno, la «Loipa dal Sulgal» (pista del sole) collega i borghi di S-chanf e Brail; un percorso consigliatissimo per gli appassionati dello sci di fondo.
Brail è anche una meta gastronomica di prim’ordine: il ristorante Vivanda all’interno dell’esclusivo hotel 5 stelle superior «IN LAIN» a cui sono stati riconosciuti una stella Michelin e 17 punti Gault-Milliau.
La località Zernez è comodamente raggiungibile in soli 12 minuti con l’autobus pubblico. Il centro comunale offre molte opportunità per il tempo libero, la formazione e la vita familiare. Oltre alla scuola, a diversi negozi e all’assistenza medica, nel comune sono presenti anche una piscina coperta, un centro sportivo e uno skilift per bambini.
Commenti
Costi contrattuali:
le spese notarili, le tasse del Registro fondiario e l’imposta sul trapasso di proprietà pari al 2,3 % del prezzo di acquisto sono ripartiti per metà ciascuno tra l’acquirente e il venditore.
le spese notarili, le tasse del Registro fondiario e l’imposta sul trapasso di proprietà pari al 2,3 % del prezzo di acquisto sono ripartiti per metà ciascuno tra l’acquirente e il venditore.
Comodità
Dintorni
- Villaggio
- Ristorante(i)
- Fermata Bus
Esterno
- Giardino condominiale
- Sgabuzzino
- Parcheggio per visitatori
Interno
- Ascensore
- Garage
- Cucina aperta
- Cantina
- Non ammobiliato
- Invetriatura tripla
- Luminoso
Dotazione
- Cucina attrezzata
- Vetroceramica
- Forno
- Frigorifero
- Congelatore
- Lavastoviglie
- Vasca da bagno
- Doccia
- Terminale per auto elettriche
- Citofono
Pavimento
- A scelta
Stato
- Nuovo
- In costruzione
Esposizione
- Est










